东方美学#绿城濮园丨水墨晕染中的江南风雅—340㎡新中式合院( 二 )
文章插图
吧台与会客区加入大量金属元素丰富空间层次,在整体的水墨色调上为地下层营造精致现代感。墙面由拼贴的渐变茶色玻璃作装饰,设计师一改隐藏灯带的寻常手法,将亮色圆环贴于玻璃之上,精致的同时让空间更添一抹暖。

文章插图

文章插图
以地下夹层代替书房作为办公区,水纹大理石地面与墨色办公桌典雅大方,开阔的格局任由灵感与思绪驰骋。

文章插图

文章插图
四层合院足够安放所有对生活的向往。设计师从居者的日常习惯出发,规划出功能各异的独立空间,在此,理想生活的多个立面都被精心雕琢。

文章插图
一座合院,端庄而不失现代感,简约却富有诗情画意,这一套水墨底色的新中式居所,是对濮院文化的延续,亦是对理想生活的憧憬。

文章插图

文章插图

文章插图

文章插图
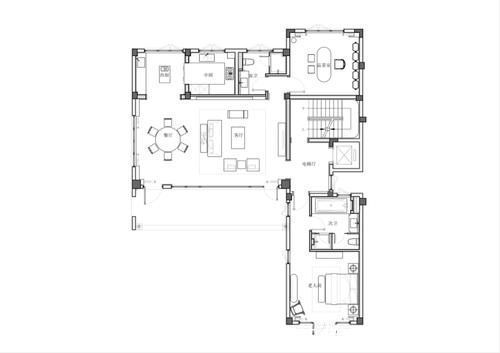
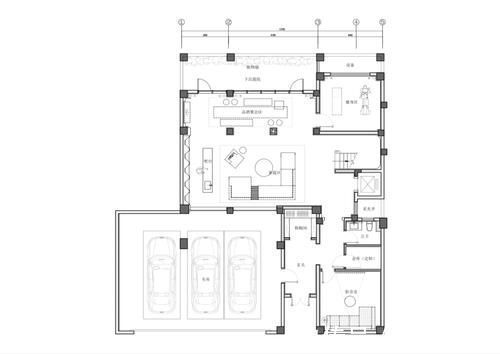
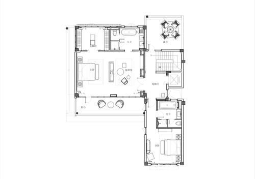
·空间平面图

文章插图

文章插图

文章插图

文章插图
免责声明:本资料为项目形象展示,仅作为要约邀请,不作为出卖人向买受人发出之购房邀约;买卖双方的权利义务以政府最终审批内容及《商品房买卖合同》约定为准。本公司保留对宣传资料修改的权利,所发布的内容为2020年12月2日前的信息,敬请留意最新资料。本项目推广名为“绿城·濮园”。本宣传资料为要约邀请,一切资料包括但不限于文字、图片等仅供参考之用,均以政府最后批准文件为依据,以买卖合同的约定为准。本宣传资料于2021年1月制作,有效期3个月
- 五星出东方利中国$“五星出东方利中国”,其实后面还有3个字,原来我们一直误解了
- 东方欲晓@闲来写就青山卖——靠写字能养活自己是一件很了不起的事情
- 万徐良$中国著名军旅画家万徐良国画将东方女性的优雅推到极致
- 唐王朝&东方艺术系列——唐三彩
- 北京青年$东方卫视春晚官宣,海派、江南、传统与科技融为一体
- 笑傲江湖$他是笑傲江湖中唯一练对葵花宝典的人,名震江湖,不是东方不败!
- 笑傲江湖#《笑傲江湖》最神秘高手,剑法在风清扬之上,速度在东方不败之上
- 大唐贵妃|《大唐贵妃》揭幕《狸猫换太子》收官,东方名家名剧月精彩而至
- 黄梅戏!《大唐贵妃》揭幕《狸猫换太子》收官,东方名家名剧月精彩而至
- 叶锦添$叶锦添:新东方主义是重建中国视野中的世界观与自我
